U gebruikt een verouderde internetbrowser.
We raden u aan om de meest recente internetbrowser te installeren voor de beste weergave van deze website.
Een internetbrowser die up to date is, staat ook garant voor veilig surfen.

Minderbroederssingel 25, 6041 KH Roermond
Vraagprijs: € 525.000 k.k.

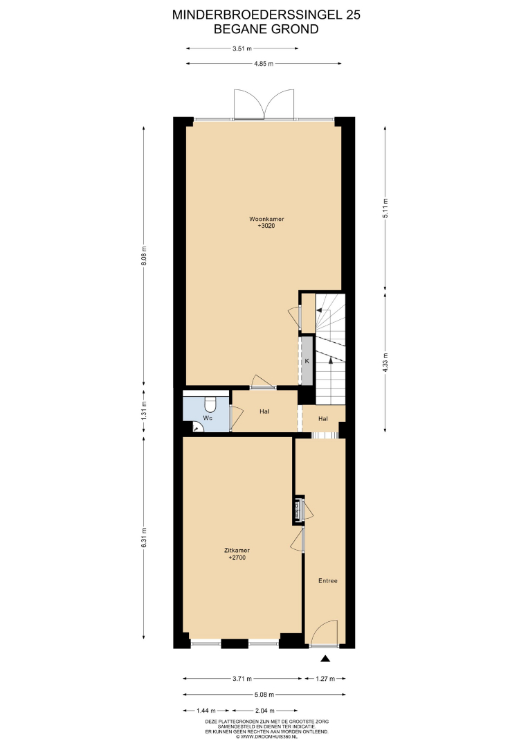
Omschrijving

Aan de charmante Minderbroederssingel in Roermond staat deze verrassend ruime en volledig gerenoveerde stadswoning. Hier woon je letterlijk op loopafstand van de Roerkade, de winkels en alle dagelijkse voorzieningen. Of je nu snel een boodschap wilt doen, een terrasje wilt pakken of even langs het water wilt wandelen – het kan allemaal. Dankzij het energielabel C en de acht zonnepanelen (2023) combineer je comfort met duurzaamheid. Een plek waar stadse levendigheid en modern woonplezier samenkomen.

Kantoor
Werk je veel vanuit huis of run je een eigen bedrijf? Dan is de lichte, ruime kantoorruimte op de begane grond een groot pluspunt. Hier is plek voor je bureau, opbergruimte en alles wat je nodig hebt om geconcentreerd te werken. Ideaal om je bedrijf te runnen vanuit een inspirerende locatie – midden in het centrum van Roermond.

Wonen en koken
Na een drukke dag kom je heerlijk tot rust in de royale woonkamer. Ondanks dat de woning midden in de stad ligt heb je hier geen last van het verkeer, maar geniet je van de stilte! Door de grote glazen achterpui valt het daglicht rijkelijk binnen en heb je vanuit je luie stoel een prachtig uitzicht op de tuin. Op zonnige dagen zet je de openslaande deuren wagenwijd open en geniet je van de buitenlucht.
Op de eerste verdieping vind je de moderne keuken, compleet uitgerust met inductiekookplaat, oven, koelkast en vaatwasser. Hier kook je moeiteloos je favoriete gerechten terwijl het gezin of je gasten plaatsnemen in de eetkamer. Op warme dagen stap je direct vanaf de keuken het dakterras op voor een ontbijt in de zon of een diner bij zonsondergang.

Slapen en baden
Met drie slaapkamers op de tweede verdieping is er ruimte genoeg voor een gezin, logees of hobbykamers. Denk aan een inloopkast, een extra werkkamer of zelfs een tweede badkamer. Op de derde verdieping bevindt zich nog een vierde slaapkamer, dus aan ruimte geen gebrek! De derde verdieping is bereikbaar via een molenaarstrap.
De badkamer op de eerste verdieping beschikt over een inloopdouche en wastafel. Het toilet vind je in de aangrenzende ruimte, apart van de badkamer.

Buitenleven
De tuin is een groene oase midden in de stad. Deze staat het gehele jaar prachtig in bloei, dus ook in de winter geniet je van een mooie kleurrijke tuin! Via de openslaande deuren in de woonkamer stap je direct naar buiten. Of je nu groene vingers hebt of juist houdt van een onderhoudsvriendelijke tuin, hier kun je alle kanten op. Helemaal achterin staat een sfeervolle tuinkamer met sedumdak. Perfect voor lange zomeravonden met vrienden of juist knusse wintermomenten met een warme chocolademelk.

Locatie
De woning is gelegen in hartje Roermond. Op loopafstand liggen alle dagelijkse voorzieningen en het bruisende centrum van de stad. De supermarkt ligt om de hoek en een paar minuutjes lopen en je zit middenin het centrum met alle leuke winkels en boetiekjes. Ook de Roerkade met alle gezellige eetgelegenheden en cafeetjes is binnen 5 minuten lopen bereikbaar. Spontaan een hapje gaan eten is dan ook geen enkel probleem op deze locatie! De autosnelwegen A2 en A73, richting Eindhoven, Maastricht, Nijmegen en Venlo zijn binnen 5 tot 10 autominuten bereikbaar.

Aanvaarding:
In overleg.

Bezichtiging:
Uitsluitend na afspraak met ons kantoor.

Informatie:
Wij hebben getracht middels deze zorgvuldig samengestelde documentatie u zo uitgebreid mogelijk te informeren. Desondanks kunnen hieraan geen rechten worden ontleend. Slechts de feitelijke situatie geeft u een juist beeld.

Kadastrale gegevens:
Kadastrale gemeente : Roermond
Sectie : D
Nummer : 3958
Perceeloppervlak : 160 m²


Kenmerken

Algemeen

Adres:Minderbroederssingel 25
Roermond
Referentie:AB&P Vaassen Makelaardij
Vraagprijs:€ 525.000/totaal k.k.
Type:Woning
Beschikbaar vanaf:In overleg
Ligging:In centrum, Stad centrum
Perceeloppervlakte:160 m²
Perceelbreedte:5 m
Perceeldiepte:30 m
Bebouwde opp.:75 m²
Totale woonoppervlakte:185 m²
Type constructie:Traditioneel
Bouwjaar:1909
Inhoud:819 m³
Gevelbreedte:5 m
Bouwlagen:5
Overige inpandige ruimte:50 m²
Gebouwgebonden buitenruimte:27 m²
Externe Bergruimte :21 m²
Algemene staat:Normaal

Indeling

Kamers:6
Slaapkamers:3
Badkamers:1
WC:2
Woonkamer:35 m², Woonkamer
Keuken:10 m², Dichte keuken, Ingericht met inbouwapparatuur
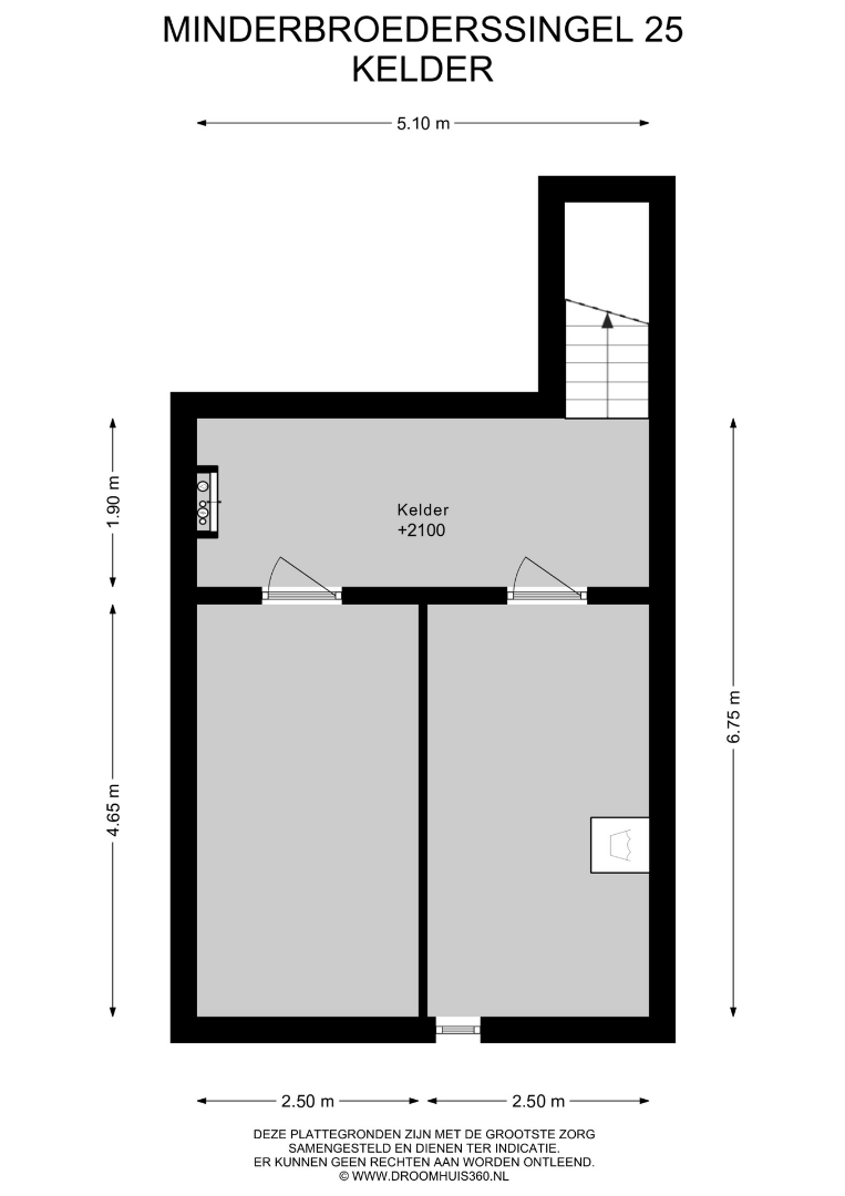
Kelder:32 m²
Tuin:Ja
Tuin breedte:5 m
Tuin diepte:12 m
Tuin oriëntatie:Noord-Oost
Tuin kwaliteit:Normaal

Comfort

Snelweg:Ja - op 4000 m tot 5000 m
Treinstation:Ja - op 500 m tot 1000 m
Bushalte:Ja - op minder dan 500 m
Winkel:Ja - op minder dan 500 m
School:Ja - op minder dan 500 m
Kinderopvang:Ja - op minder dan 500 m
Bank:Ja - op minder dan 500 m
Ontspanning:Ja - op minder dan 500 m
Restaurant:Ja - op minder dan 500 m
Raamwerk:Hardhout, Aluminium
Dak:Koepeldak
Beglazing:Dubbel
Verwarming:Heteluchtverwarming
Verwarmd water:Gasboiler eigendom
Isolatie:Dakisolatie, Muurisolatie

Kadastrale gegevens

Kad. gemeente:Roermond
Oppervlakte:160 m²

Informatieplicht

Energielabel:C
Geldig tot:24-5-2033

Ligging

360°

Neem vrijblijvend contact op

Wenst u meer informatie of het pand te bezoeken? Contacteer ons vrijblijvend voor meer informatie. 
Wanneer wij uw aanvraag hebben ontvangen zullen wij verder contact met u opnemen. 


U moet akkoord gaan met het privacybeleid van deze website
* Verplicht in te vullen
Niet gevonden wat u zocht? Schrijf u dan vrijblijvend in op onze nieuwsbrief en blijf op de hoogte van ons recentste aanbod.
Schrijf u in
Terug naar boven
Sluit menu AB&P Vaassen