U gebruikt een verouderde internetbrowser.
We raden u aan om de meest recente internetbrowser te installeren voor de beste weergave van deze website.
Een internetbrowser die up to date is, staat ook garant voor veilig surfen.

Markt 6, 6071 JD Swalmen
Vraagprijs: € 379.000 k.k.

Omschrijving

Gelegen in het gezellige centrum van Swalmen bieden wij u dit multifunctionele woon-werkpand te koop aan. De begane grond is momenteel in gebruik als dorpscafé. Dit pand biedt vele mogelijkheden, denk aan horeca, winkel- of kantoorpand, of verbouw het tot appartementen! De opties zijn eindeloos.

Het bouwjaar van het object is omstreeks 1840 en het is gelegen op een perceel van ca. 134 m². De bovenwoning heeft een woonoppervlakte van 91 m² gelegen op de eerste en tweede verdieping. Het bedrijfsgedeelte heeft een VVO van ca. 118 m². De inhoud van het gehele pand bedraagt ca. 860 m³.

Het object is goed bereikbaar. Alle dagelijkse voorzieningen, waaronder een supermarkt, restaurant, huisarts, basisschool etc. bevinden zich in de directe omgeving. Op ca. 4 km afstand bevindt zich de oprit voor de autosnelweg A73 richting Eindhoven, Maastricht, Venlo en Nijmegen.

Parkeren:
Voor het pand is voldoende parkeermogelijkheid op de Markt. Tevens is in de nabije omgeving ook voldoende parkeergelegenheid.

Opleveringsniveau:
Casco plus.

Bestemmingsplan:
Huidige bestemming: centrum – 2.

Indeling:

Souterrain:
Kelder (54 m²).

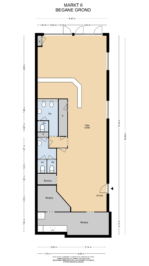
Begane grond:
Op de begane grond bevindt zich het café (ca. 96 m²) met een bar, dames- en herentoiletten met fonteintjes (ca. 13 m²), 3 bergingen ( ca. 7 m² en 2 m²). De grote berging beschikt over een keukenblok en witgoedaansluiting achter in het café (ca. 13 m²). Het café is zowel via de voorkant als de zijkant toegankelijk.
Voor het pand bevindt zich een terras.

Het café is natuurlijk te gebruiken als horecagelegenheid, maar het is eveneens mogelijk om in het object een winkel- of kantoorpand of appartementen te realiseren.

Eerste verdieping:
Het appartement is toegankelijk via een vaste trap aan de zijkant van het pand. Via het dakterras bereik je de entree van het appartement die uitkomt in de keuken. De keuken beschikt over een wasbak, gasfornuis, afzuigkap, vaatwasser en opbergkasten (20 m²). Vanuit de keuken bereik je de overloop met toegang tot de tweede verdieping via een vaste trap, de woonkamer en de badkamer. De woonkamer heeft een oppervlakte van ca. 28 m² en heeft genoeg ruimte voor een eethoek en een zithoek met een bank.
De badkamer (7 m²) beschikt over een ligbad/douche, een wastafel en een zwevend toilet. Tevens bevindt de witgoedaansluiting zich in de badkamer.

Tweede verdieping:
De tweede verdieping is middels een vaste trap toegankelijk. Op de tweede verdieping bevinden zich 2 ruime slaapkamers (14 m² en 16 m²).

Locatie:
Gelegen in het gezellige centrum van Swalmen op de Markt, waar alle dagelijkse voorzieningen in de buurt liggen. Swalmen heeft goede voorzieningen met een supermarkt, diverse winkels, een gemeenschapshuis en een sportcentrum. Het treinstation is op fietsafstand, net als Roermond. Steden als Roermond en Venlo zijn met de auto goed bereikbaar, net als het Duitse Brüggen. Swalmen heeft een uitstekende ligging ten opzichte van de snelweg A73, de Maasplassen en het landelijke buitengebied met goede wandel- en fietsmogelijkheden.

Aanvaarding:
In overleg.

Bezichtiging:
Uitsluitend na afspraak met ons kantoor.

Informatie:
Wij hebben getracht middels deze zorgvuldig samengestelde documentatie u zo uitgebreid mogelijk te informeren. Desondanks kunnen hieraan geen rechten worden ontleend. Slechts de feitelijke situatie geeft u een juist beeld.

Kadastrale gegevens:
Kadastrale gemeente : Swalmen
Sectie : C
Nummer : 2352
Perceeloppervlak : 134 m²

Vraagprijs: € 379.000,-- k.k.


Kenmerken

Algemeen

Adres:Markt 6
Swalmen
Referentie:AB&P Vaassen
Vraagprijs:€ 379.000/totaal k.k.
Type:Café
Beschikbaar vanaf:In overleg
Ligging:A-locatie, Gemeente
Perceeloppervlakte:134 m²
Perceelbreedte:7 m
Perceeldiepte:19 m
Bouwjaar:1840
Inhoud:860 m³
Bouwlagen:4
Algemene staat:Normaal

Comfort

Snelweg:Ja - op 4000 m tot 5000 m
Treinstation:Ja - op 500 m tot 1000 m
Bushalte:Ja - op minder dan 500 m
Winkel:Ja - op minder dan 500 m
School:Ja - op 500 m tot 1000 m
Kinderopvang:Ja - op 500 m tot 1000 m
Bank:Ja - op minder dan 500 m
(Stads)centrum:Ja - op minder dan 500 m
Ontspanning:Ja - op minder dan 500 m
Restaurant:Ja - op minder dan 500 m
Dak:Tentdak
Verwarming:CV-ketel
Verwarmd water:Combiketel

Kadastrale gegevens

Kad. gemeente:Swalmen
Oppervlakte:134 m²

Informatieplicht

Energielabel:G
Geldig tot:11-10-2034

Ligging

360°

Neem vrijblijvend contact op

Wenst u meer informatie of het pand te bezoeken? Contacteer ons vrijblijvend voor meer informatie. 
Wanneer wij uw aanvraag hebben ontvangen zullen wij verder contact met u opnemen. 


U moet akkoord gaan met het privacybeleid van deze website
* Verplicht in te vullen
Niet gevonden wat u zocht? Schrijf u dan vrijblijvend in op onze nieuwsbrief en blijf op de hoogte van ons recentste aanbod.
Schrijf u in
Terug naar boven
Sluit menu AB&P Vaassen