U gebruikt een verouderde internetbrowser.
We raden u aan om de meest recente internetbrowser te installeren voor de beste weergave van deze website.
Een internetbrowser die up to date is, staat ook garant voor veilig surfen.

Schoenmakersstraat 9 / B, 6041 EX Roermond
Vraagprijs: € 360.000 k.k.

Omschrijving

Gelegen in de bruisende binnenstad van Roermond bieden wij u deze bovenwoning met aparte entree te koop aan. Het pand is gelegen op een absolute A1 locatie in het centrum van Roermond aan de Schoenmakersstraat 9B. In de aangrenzende straat zijn diverse bekende winkels gelegen zoals onder andere H&M, Etos, C&A, ICI Paris, Siebel Juweliers en Parfumerie Douglas.

De monumentale binnenstad van Roermond kenmerkt zich door een zeer ruim winkel- en horeca-aanbod, inclusief het Designer Outlet Center dat ligt op slechts 5 min lopen en trekt jaarlijks vele miljoenen bezoekers. Met vele monumentale panden is het een gezellig historisch winkelcentrum. De evenementenkalender is goed gevuld, er is een rijk cultureel aanbod. Bovendien grenst het centrum van deze midden – Limburgse bisschopstad aan het uitgestrekte watersportgebied “De Maasplassen” en ligt het Nationale natuurpark “de Meinweg” op steenworp afstand. Roermond beschikt over veel gezelligheid en het aanbod van winkels en horecagelegenheden is ruim.

Parkeren:
In de directe omgeving ligt onder andere een Q-Park parkeergarage voor ruim 400 auto’s.

Metrage gegevens winkel:
Begane grond : ± 3,6 m²
1e verdieping : ± 65,6 m²
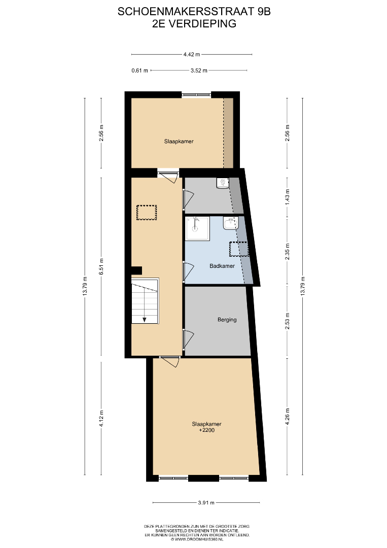
2e verdieping : ± 52,3 m²

Bestemmingsplan:
Centrum-1.

Indeling appartement:

De bovenwoning beschikt over een eigen entree, wat meteen een gevoel van privacy geeft. Bij binnenkomst kom je in een halletje terecht. Links bevindt zich de gezellige woonkamer en rechts de keuken. De keuken is volledig uitgerust met een koelkast, vaatwasser, kookplaat met afzuigkap en oven, waardoor het een praktische plek is om te koken. Vanuit de keuken is het dakterras direct toegankelijk, een heerlijke plek om van de buitenlucht te genieten. Op deze verdieping bevindt zich ook een separaat toilet.

Via een vaste trap bereik je de tweede verdieping, waar drie kamers zijn gesitueerd. Twee van deze kamers zijn uitstekend geschikt als slaapkamers, terwijl de derde bijvoorbeeld kan dienen als thuiskantoor of hobbyruimte. Daarnaast is er op deze verdieping een badkamer en een berging, die extra opbergruimte biedt en bijdraagt aan het dagelijkse comfort in de woning.

Aanvaarding:
In overleg.

Bezichtiging:
Uitsluitend na afspraak met ons kantoor.

Informatie:
Wij hebben getracht middels deze zorgvuldig samengestelde documentatie u zo uitgebreid mogelijk te informeren. Desondanks kunnen hieraan geen rechten worden ontleend. Slechts de feitelijke situatie geeft u een juist beeld.

Kadastrale gegevens:
Kadastrale gemeente : Roermond
Sectie : D
Nummer : 5259

Koopprijs: € 360.000,- k.k.


Kenmerken

Algemeen

Adres:Schoenmakersstraat 9-B
Roermond
Referentie:AB&P Vaassen
Vraagprijs:€ 360.000/totaal k.k.
Type:Bovenwoning
Beschikbaar vanaf:In overleg
Ligging:In centrum, Stad centrum
Perceelbreedte:5 m
Perceeldiepte:27 m
Totale woonoppervlakte:121 m²
Type constructie:Traditioneel
Bouwjaar:1886
Algemene staat:Normaal

Indeling

Kamers:6
Slaapkamers:2
Badkamers:1
WC:1
Woonkamer:26 m²
Keuken:21 m²
Showroom:131 m²

Comfort

Snelweg:Ja - op 3000 m tot 4000 m
Treinstation:Ja - op 500 m tot 1000 m
Bushalte:Ja - op 500 m tot 1000 m
Winkel:Ja - op minder dan 500 m
School:Ja - op 500 m tot 1000 m
Kinderopvang:Ja - op 500 m tot 1000 m
Bank:Ja - op minder dan 500 m
(Stads)centrum:Ja - op minder dan 500 m
Ontspanning:Ja - op minder dan 500 m
Restaurant:Ja - op minder dan 500 m

Kadastrale gegevens

Kad. gemeente:Roermond
Oppervlakte:141 m²

Informatieplicht

Energielabel:C
Geldig tot:8-2-2034

Ligging

360°

Neem vrijblijvend contact op

Wenst u meer informatie of het pand te bezoeken? Contacteer ons vrijblijvend voor meer informatie. 
Wanneer wij uw aanvraag hebben ontvangen zullen wij verder contact met u opnemen. 


U moet akkoord gaan met het privacybeleid van deze website
* Verplicht in te vullen
Niet gevonden wat u zocht? Schrijf u dan vrijblijvend in op onze nieuwsbrief en blijf op de hoogte van ons recentste aanbod.
Schrijf u in
Terug naar boven
Sluit menu AB&P Vaassen