U gebruikt een verouderde internetbrowser.
We raden u aan om de meest recente internetbrowser te installeren voor de beste weergave van deze website.
Een internetbrowser die up to date is, staat ook garant voor veilig surfen.

Heinsbergerweg 40, 6074 AE Melick
Vraagprijs: € 895.000 k.k.

Omschrijving

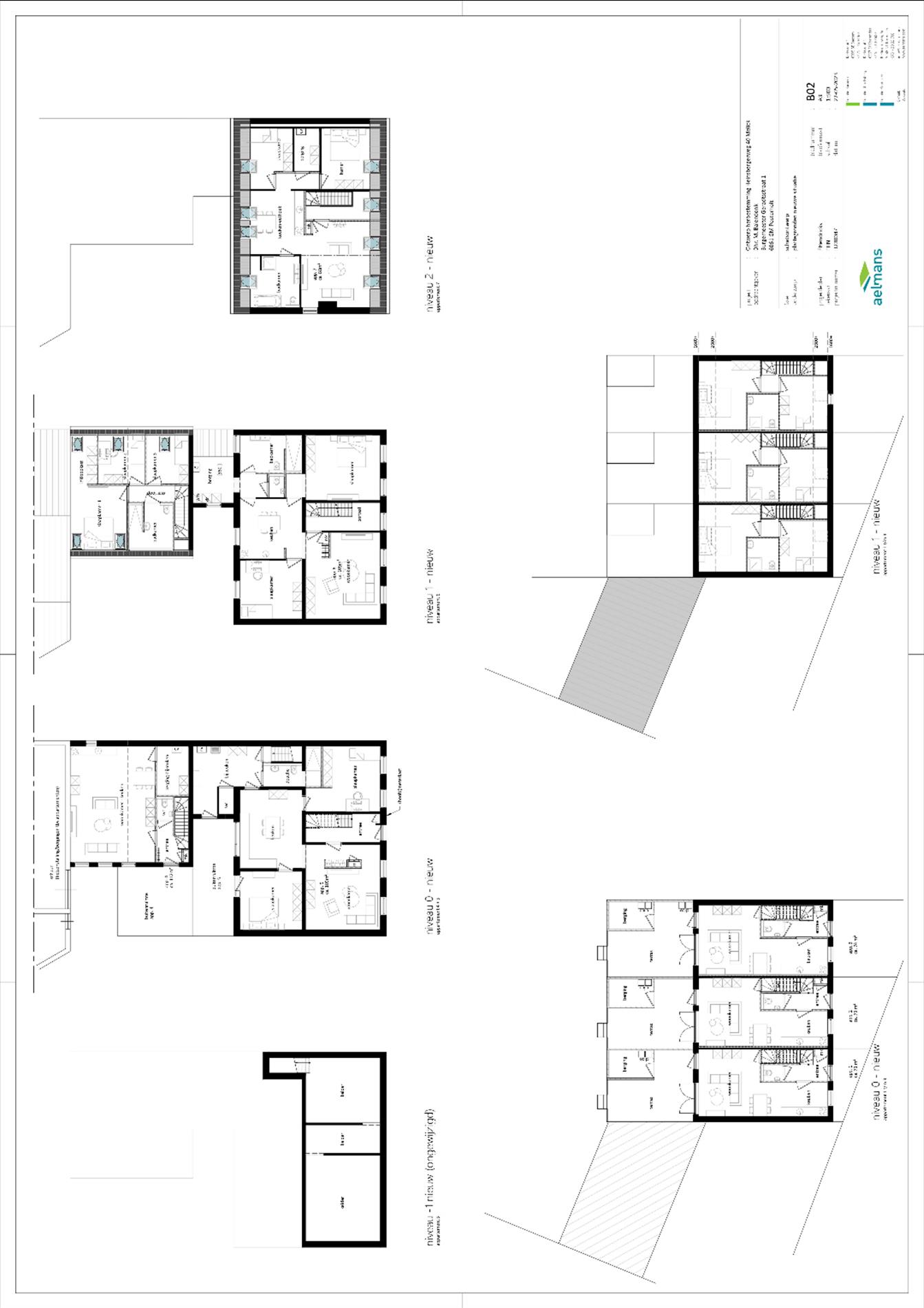
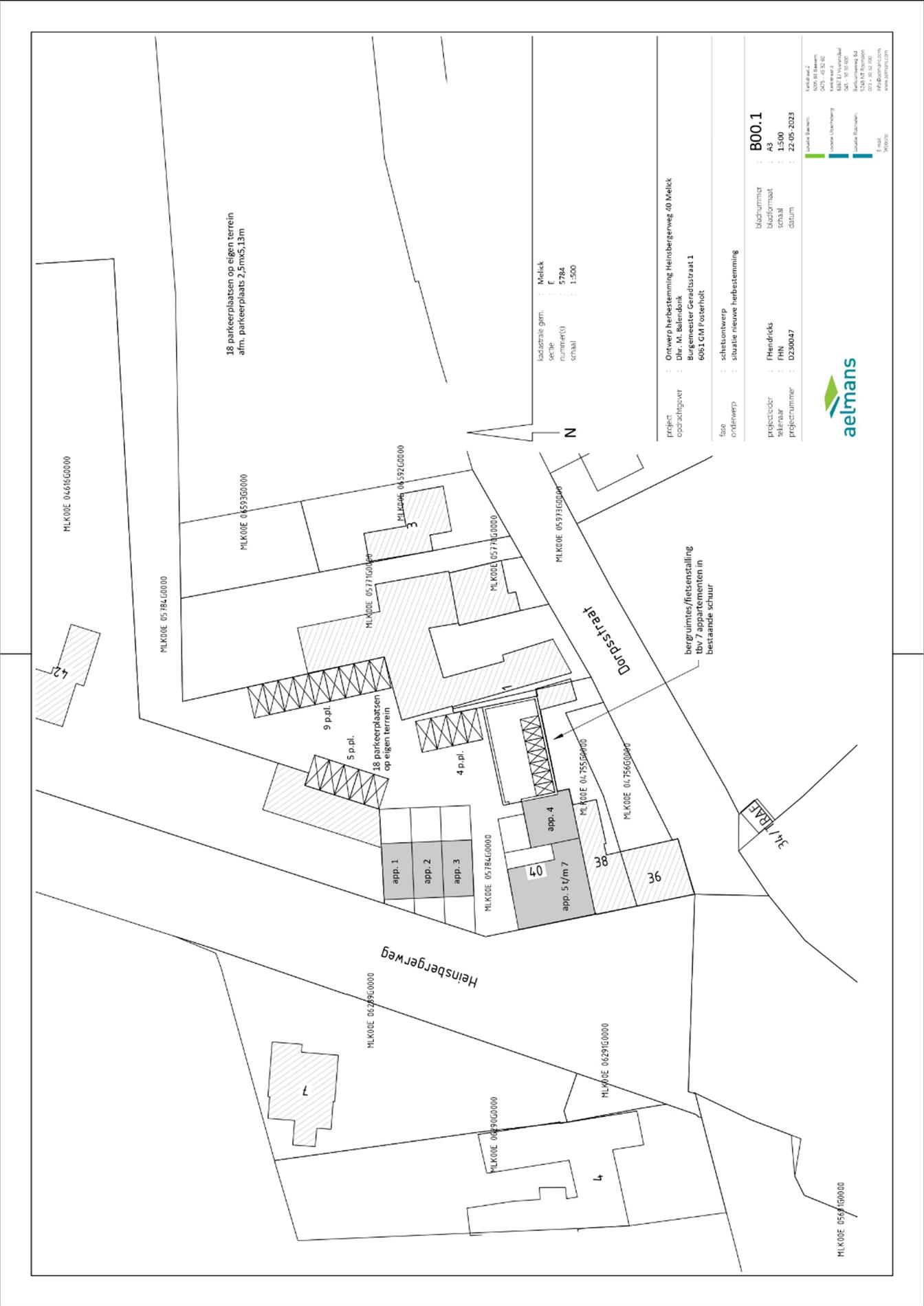
Ontwikkelaars en beleggers opgelet! Transformatie object naar zeven appartementen.

Bestaande situatie
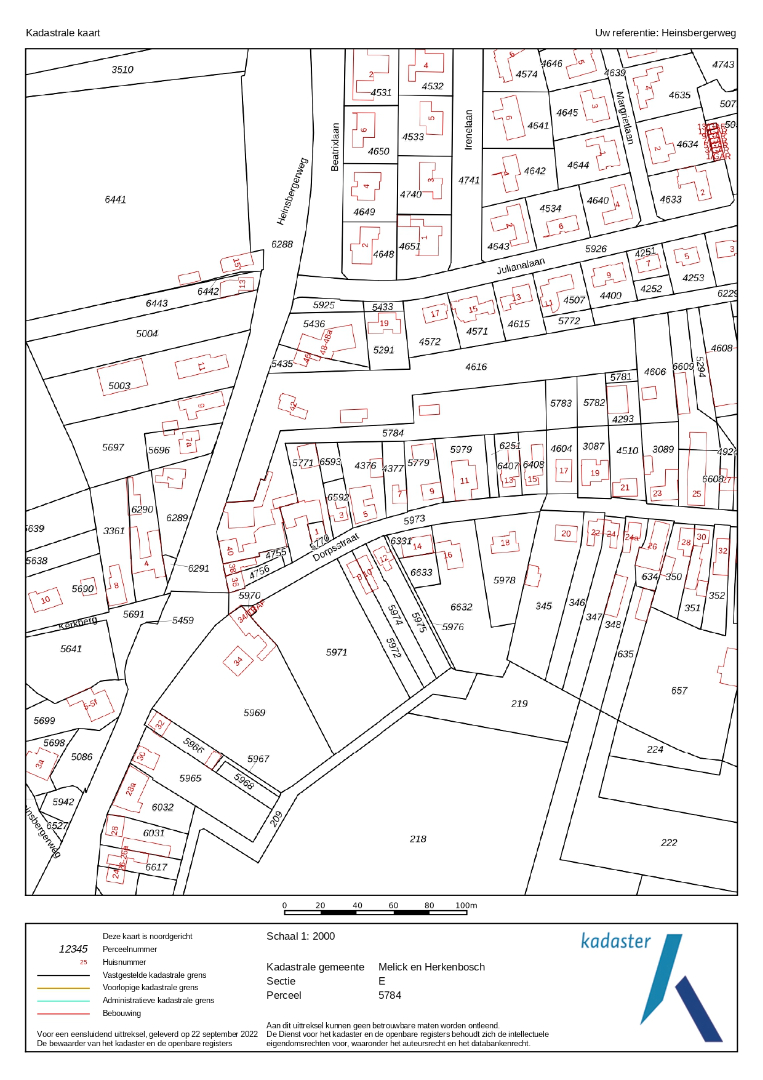
De hoofdwoning is momenteel opgedeeld voor kamerbewoning (en eigen bewoning). De naastgelegen woning aan de linkerzijde is opgedeeld in 2 appartementen. Op het achtererf zijn 5 appartementen/studio's gesitueerd. Tevens is achter de hoofdwoning nog een schuur gelegen. Het object is momenteel grotendeels verhuurd. Het object is gelegen op een perceel van ruim 4.100 m². Op het achtererf is een paardenwei met stal gelegen. Het overige terrein wordt gezamenlijk door de huurders gebruikt als parkeer- en buitenterrein.

Nieuwe situatie
Deze ontwikkellocatie beschikt over 2 woningen, diverse appartementen en studio's. De gemeente Roerdalen heeft principemedewerking verleend voor de transformatie van het object naar zeven volwaardige appartementen.

Locatie
Het dorp Melick is gelegen in de gemeente Roerdalen en beschikt over alle dagelijkse voorzieningen, zoals verschillende sportverenigingen, een supermarkt, een school, restaurants en het ligt dichtbij het natuurgebied De Meinweg. Het centrum van Roermond is ongeveer 10 minuten rijden met de auto en ook de snelweg A73 ligt op een steenworp afstand waardoor steden als Maastricht, Venlo, Eindhoven en Düsseldorf bereikbaar zijn op 30 autominuten afstand.

Voor meer informatie neem contact op met ons kantoor.


Kenmerken

Algemeen

Adres:Heinsbergerweg 40
Melick
Referentie:AB&P Vaassen
Vraagprijs:Verkocht | onder voorbehoud
Type:Andere
Beschikbaar vanaf:Per direct
Ligging:Aan drukke weg
Perceeloppervlakte:4.127 m²
Totale woonoppervlakte:632 m²
Type constructie:Traditioneel
Bouwjaar:1890
Algemene staat:Te renoveren

Comfort

Snelweg:Ja
Treinstation:Ja
Bushalte:Ja

Kadastrale gegevens

Kad. gemeente:Melick en Herkenbosch
Oppervlakte:4.127 m²

Informatieplicht

Energielabel:C
Geldig tot:8-9-2030

Ligging

Neem vrijblijvend contact op

Wenst u meer informatie of het pand te bezoeken? Contacteer ons vrijblijvend voor meer informatie. 
Wanneer wij uw aanvraag hebben ontvangen zullen wij verder contact met u opnemen. 


U moet akkoord gaan met het privacybeleid van deze website
* Verplicht in te vullen
Niet gevonden wat u zocht? Schrijf u dan vrijblijvend in op onze nieuwsbrief en blijf op de hoogte van ons recentste aanbod.
Schrijf u in
Terug naar boven
Sluit menu AB&P Vaassen