U gebruikt een verouderde internetbrowser.
We raden u aan om de meest recente internetbrowser te installeren voor de beste weergave van deze website.
Een internetbrowser die up to date is, staat ook garant voor veilig surfen.

Aziëstraat 7, 6014 DA Ittervoort
Huurprijs: € 475 /maand

Omschrijving

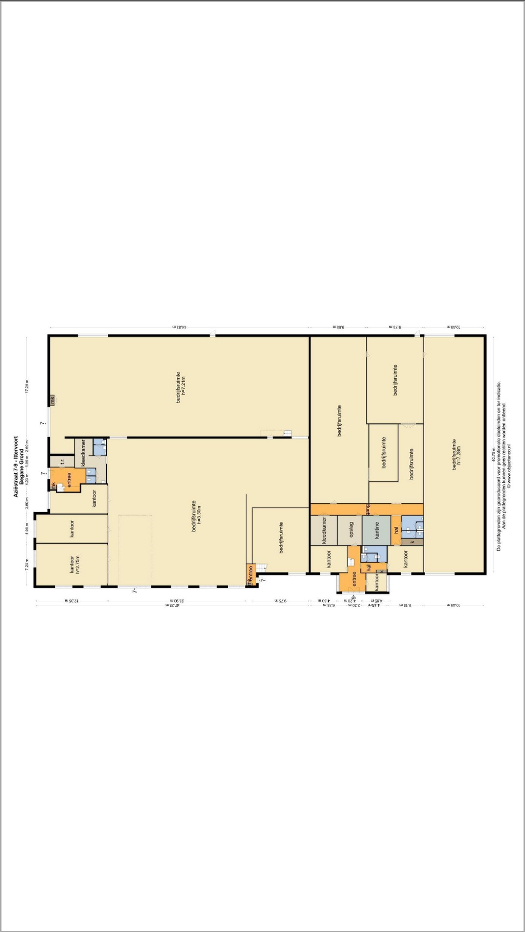
In een multifunctioneel bedrijfsgebouw op het bedrijventerrein Ittervoort bieden wij in het kantoorverzamelgedeelte (1e verdieping) een tweetal keurige kantoorruimtes te huur aan.
Het hele gebouw is voorzien van alarminstallatie, vloerverwarming en zonneschermen.

Ittervoort is centraal gelegen in Midden-Limburg tussen Eindhoven en Maastricht. De ligging van het bedrijfsgebouw is uitstekend met zichtlocatie aan de N273 ‘Napoleonsweg’. De autosnelweg A2 Maastricht - Eindhoven en de A73 richting Venlo, Nijmegen en Duitsland liggen op slechts 1 à 2 km. Tevens is het industrieterrein direct gelegen aan de Rijksweg N273 Venlo – Maaseik en heeft een uitstekende verbinding met België.

Het bedrijventerrein Ittervoort is een gemengd bedrijventerrein, wat zich kenmerkt door een variatie aan bedrijvigheid. De activiteiten van de omliggende bedrijven zijn internationaal, nationaal alsook regionaal van karakter.

Parkeren:
Op eigen terrein zijn parkeerplaatsen aanwezig.

Metrage gegevens:
Kantoor 1 : ca. 42 m²
kantoor 2: : ca. 35 m²

Huurprijs:
kantoor 1: € 475,00 per maand excl. BTW
kantoor 2: € 400,00 per maand excl. BTW

Opleveringsniveau kantoor:
- Systeemplafond;
- Ledverlichting;
- Vloerbedekking
- Zonnescherm;
- Verwarming;
- Dubbele beglazing;
- Balkon

Bestemmingsplan:
Bedrijventerrein Ittervoort, bedrijventerrein, artikel 4.

Indeling:

Kantoren 1e verdieping:
Via de gezamenlijke entree bereikt u de kantoorruimtes op de eerste verdieping De grote raampartijen zorgen voor een uitstekende lichtinval en creëren een prettige werksfeer. Vanuit kantoor één heeft u via een schuifdeur toegang tot het balkon. Beide ruimtes zijn netjes afgewerkt en kunnen direct in gebruik worden genomen.

Algemeen:
Gezamenlijke kitchenette en dames- en heren toiletgroep.
De kantoorruimte is zowel via de centrale entree (Laagveld 2) alsmede de voorzijde (Aziëstraat 7) bereikbaar.

BTW:
Er is spraken van verhuur met BTW

Huurperioden:
5 jaar met 5 optie jaren

Opzegtermijn:
12 maanden

Huurprijsaanpassing:
Jaarlijks, op basis van de wijziging van het maandprijsindexcijfer volgens de CPI (consumentenprijsindex) reeks CPI-Alle Huishoudens (2006=100) gepubliceerd door het CBS (Centraal Bureau voor Statistiek).

Aanvaarding:
In overleg.

Zekerheidsstelling:
Bankgarantie of waarborgsom ter grootte van drie maanden bruto betalingsverplichting.

Huurovereenkomst:
Huurovereenkomst op basis van het standaardmodel van de Raad voor Onroerende Zaken (ROZ).

Bezichtiging:
Uitsluitend na afspraak met ons kantoor.

Informatie:
Wij hebben getracht middels deze zorgvuldig samengestelde documentatie u zo uitgebreid mogelijk te informeren. Desondanks kunnen hieraan geen rechten worden ontleend. Slechts de feitelijke situatie geeft u een juist beeld.

Kadastrale gegevens:
Kadastrale gemeente : Ittervoort
Sectie : A
Nummer : 1353


Kenmerken

Algemeen

Adres:Aziëstraat 7
Ittervoort
Referentie:AB&PVaassen
Huurprijs:€ 475/maand
Type:Kantoor
Beschikbaar vanaf:In overleg
Ligging:Bedrijventerrein, Industrieterrein
Perceeloppervlakte:117 m²
Bouwjaar:2006
Renovatiejaar:2021
Bouwlagen:2
Op verdieping:1
Algemene staat:Normaal
Verhuurbare vloeroppervlakte:77 m²

Comfort

Snelweg:Ja - op 1500 m tot 2000 m
Bushalte:Ja - op 500 m tot 1000 m
Winkel:Ja - op 1000 m tot 1500 m
School:Ja
Bank:Ja - op 1000 m tot 1500 m
Restaurant:Ja - op 500 m tot 1000 m
Raamwerk:Kunststof
Beglazing:Dubbel

Kadastrale gegevens

Kad. gemeente:Ittervoort
Oppervlakte:5.667 m²

Ligging

Neem vrijblijvend contact op

Wenst u meer informatie of het pand te bezoeken? Contacteer ons vrijblijvend voor meer informatie. 
Wanneer wij uw aanvraag hebben ontvangen zullen wij verder contact met u opnemen. 


U moet akkoord gaan met het privacybeleid van deze website
* Verplicht in te vullen
Niet gevonden wat u zocht? Schrijf u dan vrijblijvend in op onze nieuwsbrief en blijf op de hoogte van ons recentste aanbod.
Schrijf u in
Terug naar boven
Sluit menu AB&P Vaassen