U gebruikt een verouderde internetbrowser.
We raden u aan om de meest recente internetbrowser te installeren voor de beste weergave van deze website.
Een internetbrowser die up to date is, staat ook garant voor veilig surfen.

Sleestraat 8, 6014 CA Ittervoort
Huurprijs: € 60.000 /jaar

Omschrijving

Op een toplocatie op het industrieterrein Ittervoort bieden wij u dit bedrijfspand te huur aan.
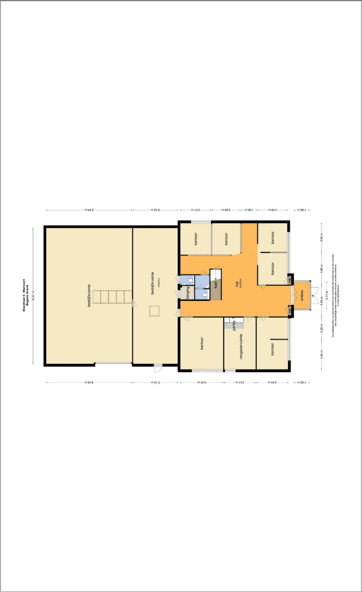
Het pand, gebouwd in 2006, bestaat uit twee bouwlagen en beschikt over ruime kantoren, een vergaderruimte, een bedrijfshal/opslagruimte in het achterste gedeelte en parkeerruimte aan de voor- en zijkant van het pand.

Dankzij de strategische ligging direct aan de N270 en op minder dan één kilometer van de A2 (richting Maastricht – Eindhoven) is het pand uitstekend bereikbaar. Openbaar vervoer is ook binnen handbereik: op slechts ca. 300 meter afstand vindt u een bushalte.

Parkeren:
Het pand beschikt over eigen parkeerplaatsen aan de voorzijde van het terrein.

Metrage gegevens:
Kantoren begane grond : ca. 211 m²
Kantoren eerste verdieping : ca. 201 m²
bedrijfsruimte : ca. 233 m²

Opleveringsniveau:
- Constructie: systeembouw
- Gevels: geïsoleerde profielbeplating
- Ramen/deuren/kozijnen: kunststof kozijnen met HR ++,
- Vloeren: begane grond: beton, 1e verdieping: beton, beide etages voorzien
grindvloer
- Plafonds: systeemplafond

Bestemmingsplan:
Bedrijventerrein – artikel 4 – NL.IMRO.1640.PB14BtIttervoort – VG01 d.d. 08-09-2015

Indeling:
Via de ruime entree/ontvangsthal zijn de diverse kantoorruimtes, een vergaderruimte met pantry en een toilet met separaat fonteintje toegankelijk. Vanuit de hal heeft u tevens toegang tot de bedrijfsruimte, die is voorzien van een eigen toilet en douche.
Via de trap in de hal bereikt u de eerste verdieping.

Eerste verdieping:
Op de eerste verdieping bevinden zich vijf royale kantoorruimtes, een berging en een separate toiletruimte.

BTW:
Er is sprake van verhuur met BTW.

Huurperioden:
5 jaar met 5 optie jaren

Opzegtermijn:
12 maanden

Huurprijsaanpassing:
Jaarlijks, op basis van de wijziging van het maandprijsindexcijfer volgens de CPI (consumentenprijsindex) reeks CPI-Alle Huishoudens (2006=100) gepubliceerd door het CBS (Centraal Bureau voor Statistiek).

Aanvaarding:
in overleg

Zekerheidsstelling:
Bankgarantie of waarborgsom ter grootte van drie maanden bruto betalingsverplichting.

Huurovereenkomst:
Huurovereenkomst op basis van het standaardmodel van de Raad voor Onroerende Zaken (ROZ).

Bezichtiging:
Uitsluitend na afspraak met ons kantoor.

Informatie:
Wij hebben getracht middels deze zorgvuldig samengestelde documentatie u zo uitgebreid mogelijk te informeren. Desondanks kunnen hieraan geen rechten worden ontleend. Slechts de feitelijke situatie geeft u een juist beeld.

Kadastrale gegevens:
Kadastrale gemeente : Ittervoort
Sectie : A
Nummer : 1162



Kenmerken

Algemeen

Adres:Sleestraat 8
Ittervoort
Referentie:AB&P Vaassen Makelaardij
Huurprijs:€ 60.000/jaar
Type:Kantoor
Beschikbaar vanaf:In overleg
Ligging:Industrieterrein
Perceelbreedte:28 m
Perceeldiepte:26 m
Bouwjaar:2006
Bouwlagen:2
Algemene staat:Normaal
Verhuurbare vloeroppervlakte:645 m²

Comfort

Snelweg:Ja - op 1500 m tot 2000 m
Treinstation:Ja - op 5000 m of meer
Bushalte:Ja - op 500 m tot 1000 m
Winkel:Ja - op 1500 m tot 2000 m
School:Ja - op 1500 m tot 2000 m
Kinderopvang:Ja - op 1500 m tot 2000 m
Bank:Ja - op 1500 m tot 2000 m
(Stads)centrum:Ja - op 1500 m tot 2000 m
Ontspanning:Ja - op 1500 m tot 2000 m
Restaurant:Ja - op 1500 m tot 2000 m
Dak:Plat dak

Kadastrale gegevens

Kad. gemeente:Ittervoort
Oppervlakte:1.000 m²

Informatieplicht

Energielabel:A
Geldig tot:13-5-2029

Ligging

Neem vrijblijvend contact op

Wenst u meer informatie of het pand te bezoeken? Contacteer ons vrijblijvend voor meer informatie. 
Wanneer wij uw aanvraag hebben ontvangen zullen wij verder contact met u opnemen. 


U moet akkoord gaan met het privacybeleid van deze website
* Verplicht in te vullen
Niet gevonden wat u zocht? Schrijf u dan vrijblijvend in op onze nieuwsbrief en blijf op de hoogte van ons recentste aanbod.
Schrijf u in
Terug naar boven
Sluit menu AB&P Vaassen