U gebruikt een verouderde internetbrowser.
We raden u aan om de meest recente internetbrowser te installeren voor de beste weergave van deze website.
Een internetbrowser die up to date is, staat ook garant voor veilig surfen.

Fregatweg 51, 6222 NZ Maastricht

Omschrijving

Soort object:
Op het Bedrijventerrein 'Beatrixhaven’ ten Noordoosten van het centrum van Maastricht bieden wij u dit vrijstaande bedrijfspand met 4 hallen en kantoren te huur aan. Het pand beschikt over zware stroomaansluiting.

Het object heeft een perceelsoppervlakte van ca. 6.048 m². Het BVO bedraagt ca. 3.721 m² bedrijfsruimte. Het pand beschikt deels over aluminium kozijnen met dubbel glas en deels houten kozijnen met enkel glas.

In de omgeving bevinden zich diverse belangrijke uitvalswegen, waardoor het pand goed te bereiken is. Op enkele autominuten zijn de A2 en A79 bereikbaar. Op ca. 600 meter loopafstand is een NS-station aanwezig met diverse busverbindingen. Op enkele kilometers afstand is het vliegveld van Maastricht Aachen airport gesitueerd.

Stroomcapaciteit:
Het pand beschikt over een zware elektra-aansluiting met een totale capaciteit van circa 1.700 ampère.

Parkeren:
Op eigen terrein is voldoende parkeergelegenheid.

Metrage gegevens:

IPD-type Ruimtetype)s) VVOm²

Kantoor
Kantoorruimte met entreehal, toiletgroep c.a. 341,00
Trapopgang, kantoorruimten, spreekkamers /kantine 250,00
Entresol, archiefruimte, cv ruimte 30,00
Subtotaal 621,00

Bedrijfsruimte
Technische ruimten -
Bedrijfsruimte 357,00
Bedrijfsruimte 101,00
Bedrijfsruimte (voorheen vrieshal) 522,00
Opslag-/expeditie ruimte 163,00
Werkplaats 23,00
Tussenvloer, technische ruimte 23,00
Bedrijfsruimte (voorheen verkoopruimte) 624,00
Uitbreiding verkoopruimte en magazijnen (2005) 577,00
Bedrijfshal expeditie ruimte (uitbreiding 2005) 350,00
Subtotaal 2.740,00
Totaal 3.361,00

Elektra:
• Aansluitcapaciteit: 1700 kVA

Huurprijs:
op aanvraag

Opleveringsniveau:
- Constructie: systeembouw met staal, beton, hout en steen
- Gevels: grotendeels gasbetonelementen en deels metselwerk, voorzien van nieuwe geprofileerde gevelbeplating. Deels houten puien van deels enkel en deels dubbel glas (grotendeels HR ++)
- Ramen/deuren/kozijnen: hout-staal-aluminium-kunststof, gedeeltelijk voorzien van enkel en deels voorzien van dubbel glas.
- Vloeren: begane grond: beton, 1e verdieping: deels beton, deels hout.
Kantoorgedeelte voorzien van PVC vloer en vloerbedekking.
- Plafonds: kantoorgedeelte systeemplafond en gipsplaten. Bedrijfshallen bestaande constructie zichtbaar.
- Scheidingswanden hallen: gasbetonelementen met deels (isolerende) sandwichpanelen.
- Plat dak met bitumineuze dakbedekking en dakbeschot van stalen geprofileerde platen.
- Vrije hoogte varieert van 5,5 tot 7,0 meter.
- 6 laaddocks met elektrisch bedienbare overheaddeuren levelers en shelters.
- Extra overheaddeur.
- Krachtstroominstallatie, totale capaciteit circa 1.700 ampère


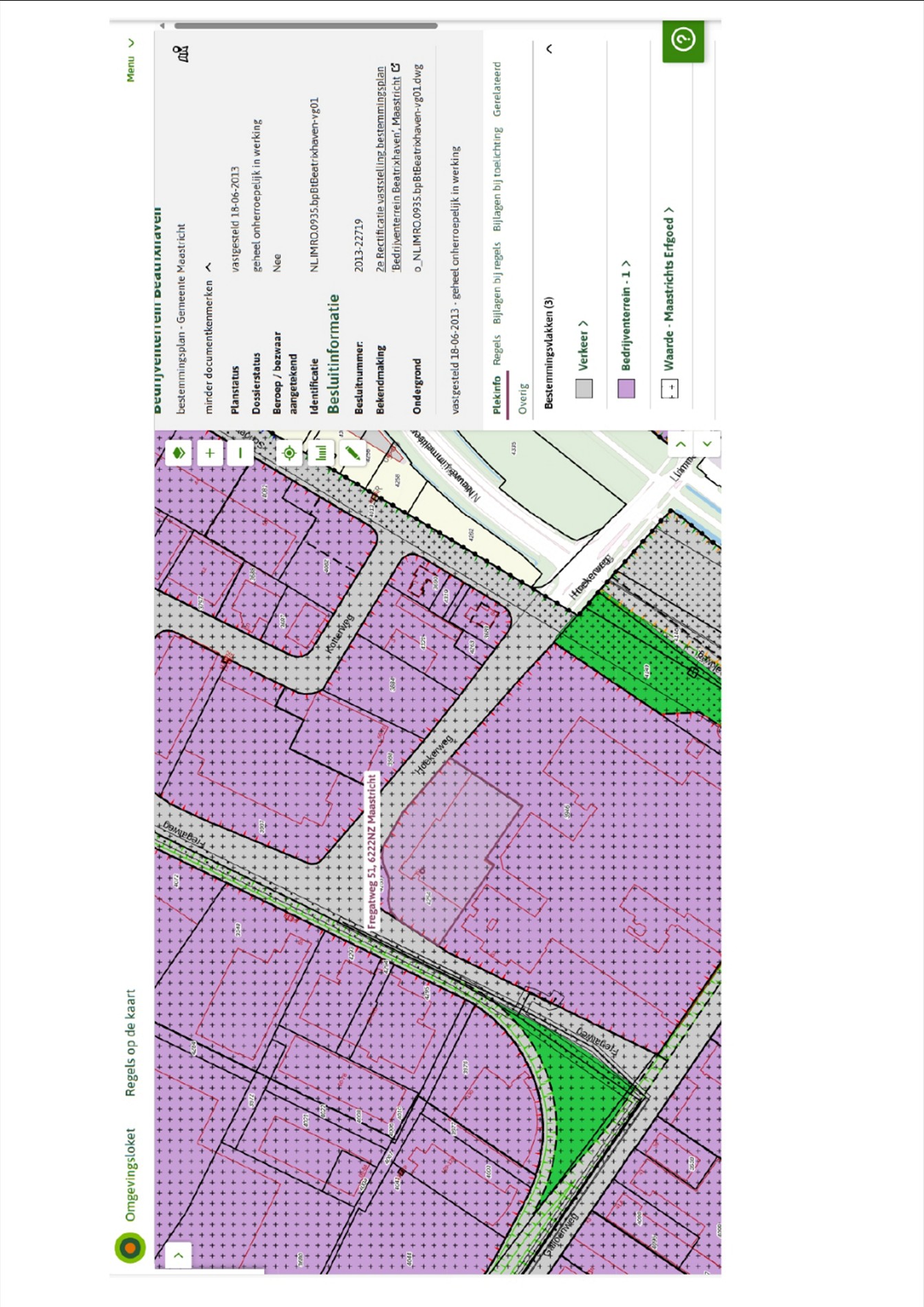
Bestemmingsplan:
Bedrijventerrein Beatrixhaven - bedrijventerrein artikel 4, NL.IMRO.0935.bpBTBeatrixhaven-vg03.

Indeling:

Begane grond:
De entree met ontvangstruimte geeft toegang tot diverse kantoren, sanitaire ruimtes, technische ruimtes en kantine. De kantoren zijn in het recente verleden verbouwd en gemoderniseerd. De kantoren staan in open verbinding met meerdere aangesloten bedrijfshallen van resp. ca. (hal 1) 790 m², (hal 2) 834 m², (hal 3) 458 m² en (hal 4) 952 m² oppervlakte. Hal 4 is voorzien van zes elektrisch bedienbare overheadpoorten en levelers die grenzen aan de voorgelegen dock shelters.
De bedrijfsruimten zijn ook ingrijpend verbouwd.

Het pand is aan de voor- alsook zijkant voorzien van een met betonklinkers verhard en volledig afsluitbaar buitenterrein inclusief groenvoorziening.. De afscheiding bestaat uit een hekwerk met twee schuifpoorten waarvan één elektrisch bedienbaar. Parkeren is mogelijk op het eigen terrein.

Eerste verdieping:
Via de trappenhal is de eerste verdieping bereikbaar. Hier bevinden diverse kantoorruimten, een conferentieruimte, een archiefruimte en de cv- ruimte.

BTW:
Er is sprake van verhuur met BTW.

Huurperioden:
5 jaar + 5 optiejaren

Opzegtermijn:
12 maanden

Huurprijsaanpassing:
Jaarlijks, op basis van de wijziging van het maandprijsindexcijfer volgens de CPI (consumentenprijsindex) reeks CPI-Alle Huishoudens (2006=100) gepubliceerd door het CBS (Centraal Bureau voor Statistiek).

Aanvaarding:
Per direct.

Zekerheidsstelling:
Bankgarantie of waarborgsom ter grootte van drie maanden bruto betalingsverplichting.

Huurovereenkomst:
Huurovereenkomst op basis van het standaardmodel van de Raad voor Onroerende Zaken (ROZ).

Bezichtiging:
Uitsluitend na afspraak met ons kantoor.

Informatie:
Wij hebben getracht middels deze zorgvuldig samengestelde documentatie u zo uitgebreid mogelijk te informeren. Desondanks kunnen hieraan geen rechten worden ontleend. Slechts de feitelijke situatie geeft u een juist beeld.

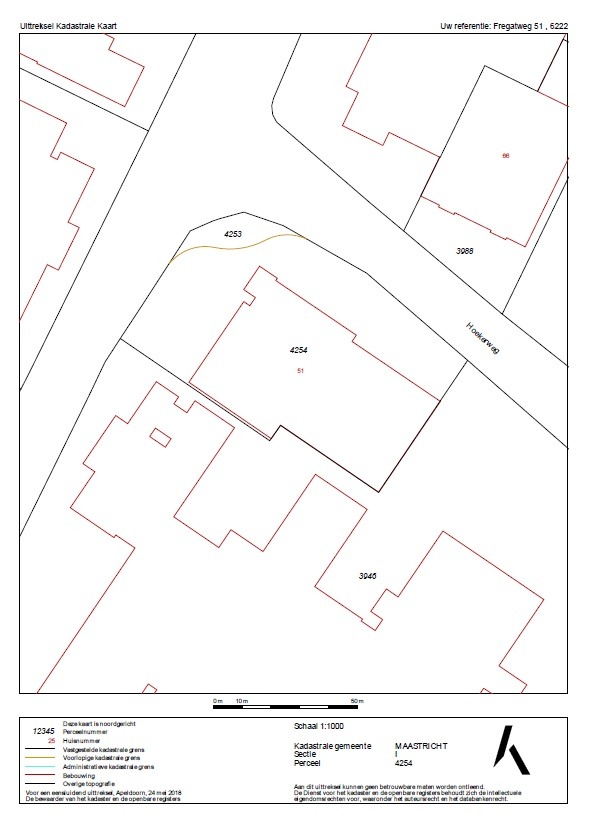
Kadastrale gegevens:
Kadastrale gemeente : Maastricht
Sectie : I
Nummer : 4254


Kenmerken

Algemeen

Adres:Fregatweg 51
Maastricht
Referentie:AB&P Vaassen
Huurprijs:Op aanvraag
Type:Bedrijfsterrein
Beschikbaar vanaf:In overleg
Ligging:Bedrijventerrein, Industrieterrein
Perceeloppervlakte:6.048 m²
Perceelbreedte:62 m
Perceeldiepte:1000 m
Bouwjaar:1982
Algemene staat:Normaal
Verhuurbare vloeroppervlakte:3 361 m²

Indeling


Bedrijfshal:
Oppervlakte:2 740 m²
Vrije hoogte:7 m
Voorzieningen:Loading docks, Overheaddeuren

Bedrijfsruimte - kantoorruimte:
Oppervlakte:621 m²
Bouwlagen:2

Comfort

Snelweg:Ja - op 1500 m tot 2000 m
Treinstation:Ja - op 500 m tot 1000 m
Bushalte:Ja - op 500 m tot 1000 m
Winkel:Ja - op 2000 m tot 3000 m
School:Ja - op 4000 m tot 5000 m
Kinderopvang:Ja - op 2000 m tot 3000 m
Bank:Ja - op 2000 m tot 3000 m
(Stads)centrum:Ja - op 4000 m tot 5000 m
Ontspanning:Ja - op 1500 m tot 2000 m
Restaurant:Ja - op 1500 m tot 2000 m
Raamwerk:Hout, Aluminium - Deels aluminium, deels houten
Dak:Plat dak met bitumineuze dakbedekking
Beglazing:Gedeeltelijk dubbel - Deels dubbel, deels enkel glas
Verwarming:CV-ketel
Verwarmd water:Elektrische boiler eigendom
Isolatie:Muurisolatie - Spouwmuurisolatie, metalen sandwichpanelen

Kadastrale gegevens

Kad. gemeente:Maastricht
Oppervlakte:6.048 m²

Informatieplicht

Energielabel:A
Geldig tot:30-8-2033

Ligging

Neem vrijblijvend contact op

Wenst u meer informatie of het pand te bezoeken? Contacteer ons vrijblijvend voor meer informatie. 
Wanneer wij uw aanvraag hebben ontvangen zullen wij verder contact met u opnemen. 


U moet akkoord gaan met het privacybeleid van deze website
* Verplicht in te vullen
Niet gevonden wat u zocht? Schrijf u dan vrijblijvend in op onze nieuwsbrief en blijf op de hoogte van ons recentste aanbod.
Schrijf u in
Terug naar boven
Sluit menu AB&P Vaassen